EFHs Niedermoosen
Platzfinder
Angebote
Kontakt
Menü
Platzfinder
Angebote
Kontakt
X
PL3-HAUS-A
Normal
Previous
Next
Loading...
2-3
plusPl3
4-1
1
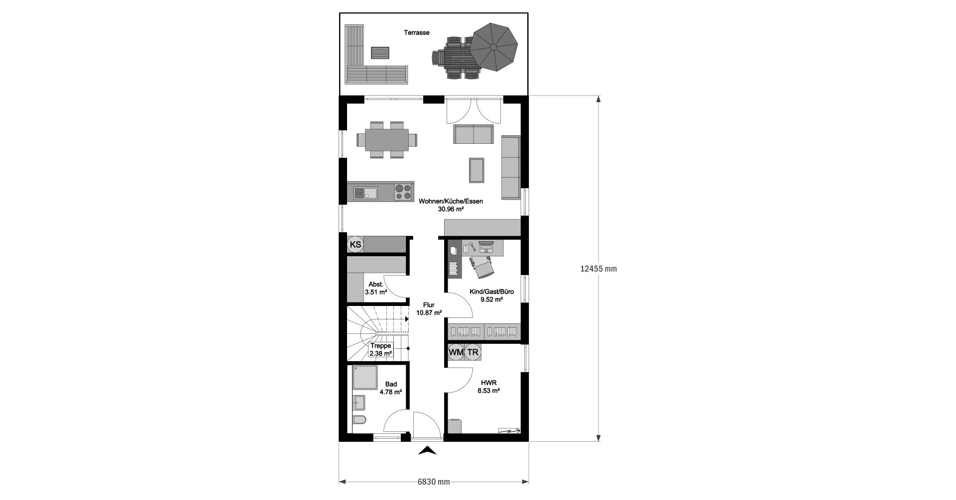
7726_2D
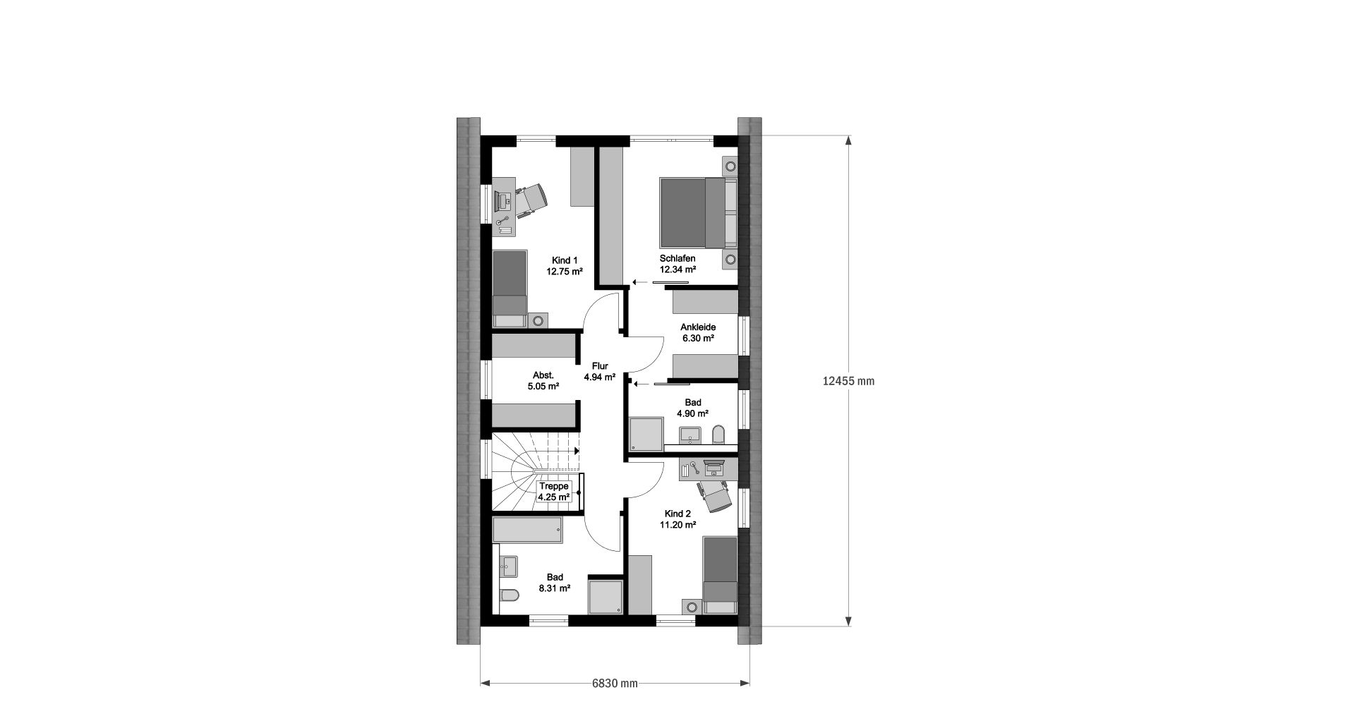
OG